Features and description
The property
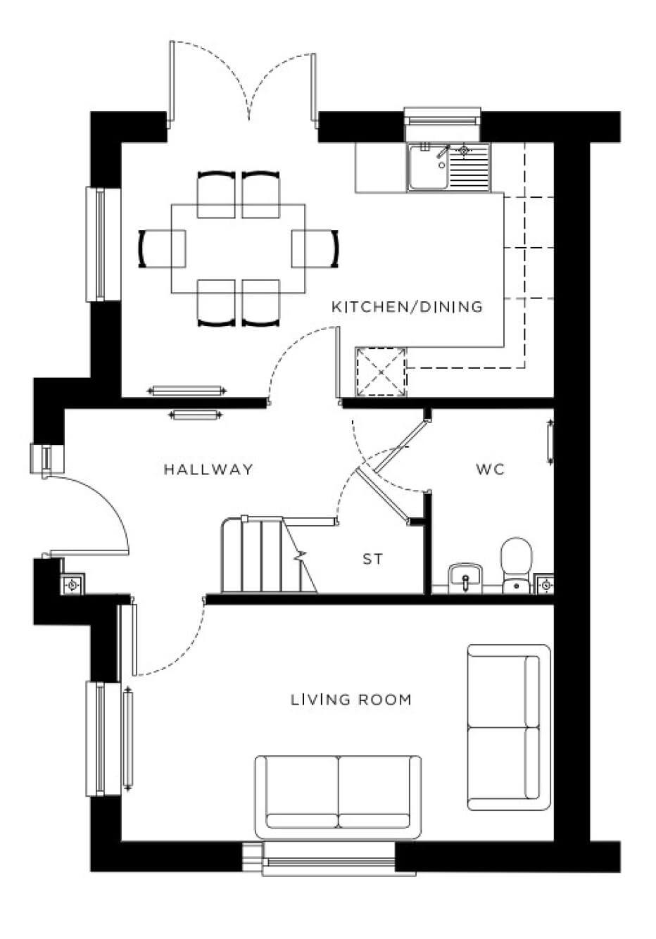
Sown with quality and built to grow with you, The Barley is a three-bedroom semi-detached home that cultivates the perfect balance of rural charm and modern living.
Offering a unique opportunity to secure a brand new home through Shared Ownership in Keresley.
The properties feature a spacious open-plan kitchen and dining area, perfect for modern living. With a focus on energy efficiency and contemporary finishes, each home provides a stylish yet practical space to call your own.
Loomcroft represents a new standard of quality for the Coventry property market, with all homes including electric vehicle charging points, plus allocated parking.
To the rear of the properties, garden layout varies subject to plot, but all homes include a turfed, secure garden. The front elevation of the homes are neatly landscaped to complement the new home.
Pre-register your interest to be the first to hear of upcoming releases and updates.
Please note: Images used are computer generated and should be used as a guide only.
Am I eligible?
Shared Ownership uses the following criteria to help people get a foot on the housing ladder:- Maximum annual household income of £80,000
One of the following statements must also be true:
- You’re a first-time buyer
- You used to own a home but can’t afford to buy now
- You’re forming a new household - typically after a relationship breakdown
- You’re already part of the Shared Ownership scheme but want to move
- You own a home and want to move but can’t afford the new home that meets your needs
Use the Shared Ownership mortgage calculator to estimate the cost of buying this home
You can purchase between 10% and 75% of the property's full market value. Each home benefits from a 10 year repair period for essential repairs.
You are able to buy more of your home through the Staircasing process, where you can purchase shares in increments of 5%. There is also the option of the 1% Gradual Staircasing Model enabling you to purchase smaller shares each year.
Pre-register your interest in The Barley
Frequently asked questions
Most buyers who can’t afford to buy a home outright can apply to buy through shared ownership.
We may also be able to help if you need to move because of a relationship breakdown or if your work requires you to live in an area outside your price range.
In order to buy through the Shared Ownership scheme, you must be able to demonstrate that you can afford and sustain home ownership. If you proceed with Shared Ownership you will be required to undertake an affordability assessment.
You must meet our adverse credit policy, if you have a history of adverse credit you are unlikely to be accepted depending on individual circumstances.
Shared owners still have to pay many of the usual costs involved in buying a home.
Reservation fee
We will ask you for a £250 deposit to reserve your chosen home. When the sale goes through we put this towards your purchase payments. However, we cannot refund it if the sale does not go through.
Mortgage deposit and fees
Most mortgage lenders will ask for a 5% or 10% deposit towards the price of the share you want to buy. They are also likely to charge a valuation fee and administration fees.
Legal fees
Solicitors’ charges can vary so it is best to get a few estimates. You will also have to pay Land Registry and local search fees, and may have to pay stamp duty depending on the value of the property.
After you've moved in
You also need to budget for the ongoing costs of owning a home.
Mortgage repayments
You will have to make monthly mortgage repayments to your lender. Depending upon the type of mortgage you have, these repayments may vary as interest rates change.
Rent
You pay a subsidised monthly rent to us on the share of your home which we own. The amount is reviewed on the 1st April each year.
Service charges
You will have to pay a small charge if your home has any facilities or communal areas which we maintain, such as shared entrance halls, lighting and grounds. Your service charge will also include your buildings insurance and your management fee.
Household bills
These include your council tax and utility bills for water, gas and electricity.
Repairs
We will arrange for any defects on new-build homes to be repaired during a set time period. After that time has elapsed, you will be responsible for arranging and paying for all repairs to your home.
Home contents insurance
We provide buildings insurance with the cost of your service charge but this does not cover your belongings. We strongly recommend you arrange your own home contents insurance.
Much will depend on your other financial commitments and what property/share you want to buy. We don't want you to be overstretched, so we need to be sure that you can afford to pay your mortgage and rent. We look at each application individually and will advise you on your options.
Shared ownership schemes are backed by government funding to help people on smaller incomes. So you will not qualify for most shared ownership schemes if your household income is less than £10,000 or more than £80,000 a year.
On the property listings for some of our shared ownership homes, you will see that we state a local connection to the area is required.
This generally applies in rural areas and small villages where land has been made available specifically for affordable housing to meet the needs of local people, rather than for private development.
These are known as ‘rural exception sites’ or 'protected areas' and are controlled by ‘Section 106 Agreements’. They aim to help local people and families afford homes in the area where they grew up.
The local connection criteria can vary between different developments, but is usually based on the following:
applicant was born in the area and has lived there for a number of years
applicant has permanently lived in the area for a number of years
applicant used to live in the area for a number of years but had to move away because of the lack of affordable housing
applicant has been permanently employed in the area for a number of years
The number of years is usually between 2 and 5, although this differs by local authority
Usually priority is given to applicants with a local connection to the parish. If there are still properties remaining, allocation will be opened up to surrounding parishes and then to the whole of the local authority area. This ensures that the homes are occupied by residents as local to the area as possible.
If you want to find out more about the local connection criteria for a particular development, or check if you qualify, please email sales@platformhg.com
Yes you can, once you have moved into your Shared Ownership property, providing you can afford it, you are able to buy more of your home through the process of Staircasing.









