Available

The Bluebell

End-Terraced House

Part of the Cleeve Gardens development

Prices from £159,000 for a 40% share

Tenure

Shared Ownership

No of bedrooms

3

No of bathrooms

2

Council Tax Band

TBC

The property

The Bluebell is a modern, three-bedroom end terrace home in Bishops Cleeve and part of the Cleeve Gardens development.

It features a contemporary layout with a spacious kitchen/dining area, a living room with double doors to a turfed rear garden, a downstairs WC. The entire property features modern fixtures and fittings. Upstairs you’ll find two double bedrooms and one single, a family bathroom and storage.

 

 

 

Features and description

  • 10 year build warranty
  • Electric Charging Point
  • Solar Panels
  • Downstairs WC
  • Stainless steel oven, hob & extractor
  • Allocated parking
  • Double glazed windows
  • En suite
  • Family bathroom with shower over bath
  • Plumbing for washing machine

Cleeve Gardens Development Brochure

For full availability, housetypes and pricing at the Cleeve Gardens development, download the development brochure.

Download Development Brochure
Platform Home Ownership CGI.

Shared Ownership VS Renting

Watch the podcast

Local Area Information

The village has three schools; Grangefield Primary School, Bishop’s Cleeve Primary Academy and Cleeve School. All which have been rated 'Good' at their most recent inspection by OFSTED.

Within the village there are plenty of local amenities to choose from, including supermarkets, restaurants, local pubs and independent retailers. For high-street retailers, residents can visit Cheltenham which is only a 14 minute drive away.

Start of floor plan slider, skip slider
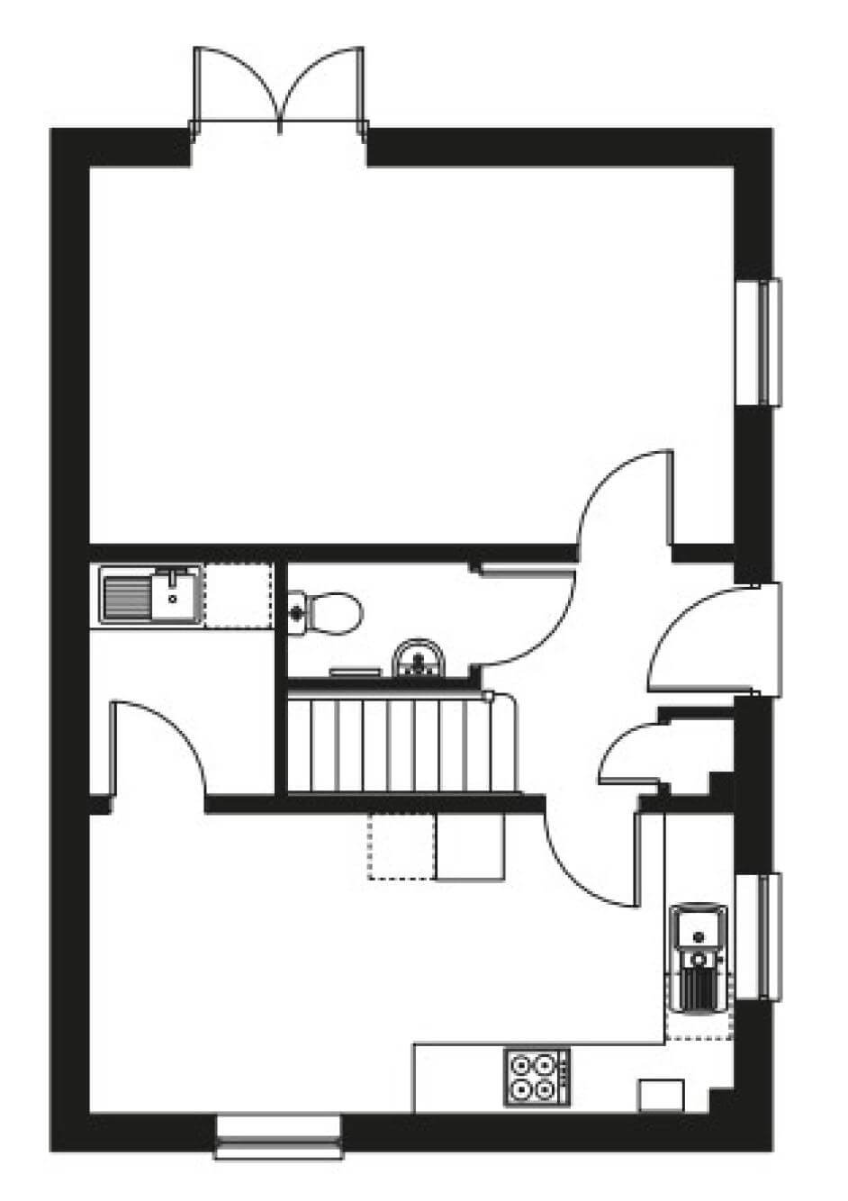
  • The Bluebell Ground Floor

    Floor plan

    Ground Floor

    • Living Room

      19.4 m2

    • Kitchen/Dining

      15.8 m2

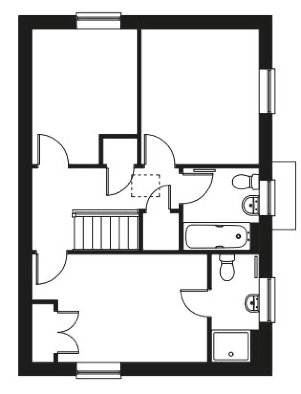
  • The Bluebell First Floor

    Floor plan

    First Floor

    • Bedroom One

      12 m2

    • Bedroom Two

      10 m2

    • Bedroom Three

      8.3 m2

Showing 1 of 2

End of floor plan slider, skip slider

Cleeve Gardens Site plan

Status

Filter your results

Development Phase
House Type
Bedrooms

Am I eligible?

Shared Ownership uses the following criteria to help people get a foot on the housing ladder:- Maximum annual household income of £80,000

One of the following statements must also be true:

  • You’re a first-time buyer
  • You used to own a home but can’t afford to buy now
  • You’re forming a new household - typically after a relationship breakdown
  • You’re already part of the Shared Ownership scheme but want to move
  • You own a home and want to move but can’t afford the new home that meets your needs

Shared Ownership Rent Table

Shared Ownership Rent Table

% SharePriceMonthly Rent
35£139,125£591.50
40£159,000£546.00
45£178,875£500.50
50£198,750£455.00

Next Steps

1

Information

For further information, please download our brochure below.

2

Enquire

Please submit an enquiry to Platform Home Ownership and the dedicated Sales Consultant for the development will make contact with you.

3

Apply Now

The Sales Consultant will send you the application form for you to complete. Please return the completed form back to us via email to sales@platformhg.com .

4

Affordability

Upon receipt of your application and once approved we will refer you for an affordability assessment to determine the most affordable share for you.

5

Availability

Once passed, we will then send you an offer letter for your chosen plot where possible


 

Frequently asked questions

Most buyers who can’t afford to buy a home outright can apply to buy through shared ownership.

We may also be able to help if you need to move because of a relationship breakdown or if your work requires you to live in an area outside your price range.

In order to buy through the Shared Ownership scheme, you must be able to demonstrate that you can afford and sustain home ownership. If you proceed with Shared Ownership you will be required to undertake an affordability assessment.

You must meet our adverse credit policy, if you have a history of adverse credit you are unlikely to be accepted depending on individual circumstances.

Shared owners still have to pay many of the usual costs involved in buying a home.

Reservation fee

We will ask you for a £250 deposit to reserve your chosen home. When the sale goes through we put this towards your purchase payments. However, we cannot refund it if the sale does not go through.

Mortgage deposit and fees

Most mortgage lenders will ask for a 5% or 10% deposit towards the price of the share you want to buy. They are also likely to charge a valuation fee and administration fees.

Legal fees

Solicitors’ charges can vary so it is best to get a few estimates. You will also have to pay Land Registry and local search fees, and may have to pay stamp duty depending on the value of the property.

After you've moved in

You also need to budget for the ongoing costs of owning a home.

Mortgage repayments

You will have to make monthly mortgage repayments to your lender. Depending upon the type of mortgage you have, these repayments may vary as interest rates change.

Rent

You pay a subsidised monthly rent to us on the share of your home which we own. The amount is reviewed on the 1st April each year.

Service charges

You will have to pay a small charge if your home has any facilities or communal areas which we maintain, such as shared entrance halls, lighting and grounds. Your service charge will also include your buildings insurance and your management fee.

Household bills

These include your council tax and utility bills for water, gas and electricity.

Repairs

We will arrange for any defects on new-build homes to be repaired during a set time period. After that time has elapsed, you will be responsible for arranging and paying for all repairs to your home.

Home contents insurance

We provide buildings insurance with the cost of your service charge but this does not cover your belongings. We strongly recommend you arrange your own home contents insurance.

Much will depend on your other financial commitments and what property/share you want to buy. We don't want you to be overstretched, so we need to be sure that you can afford to pay your mortgage and rent. We look at each application individually and will advise you on your options.

Shared ownership schemes are backed by government funding to help people on smaller incomes. So you will not qualify for most shared ownership schemes if your household income is less than £10,000 or more than £80,000 a year.

On the property listings for some of our shared ownership homes, you will see that we state a local connection to the area is required.

This generally applies in rural areas and small villages where land has been made available specifically for affordable housing to meet the needs of local people, rather than for private development.

These are known as ‘rural exception sites’ or 'protected areas' and are controlled by ‘Section 106 Agreements’. They aim to help local people and families afford homes in the area where they grew up.

The local connection criteria can vary between different developments, but is usually based on the following:

applicant was born in the area and has lived there for a number of years

applicant has permanently lived in the area for a number of years

applicant used to live in the area for a number of years but had to move away because of the lack of affordable housing

applicant has been permanently employed in the area for a number of years

The number of years is usually between 2 and 5, although this differs by local authority

Usually priority is given to applicants with a local connection to the parish. If there are still properties remaining, allocation will be opened up to surrounding parishes and then to the whole of the local authority area. This ensures that the homes are occupied by residents as local to the area as possible.

If you want to find out more about the local connection criteria for a particular development, or check if you qualify, please email sales@platformhg.com

Yes you can, once you have moved into your Shared Ownership property, providing you can afford it, you are able to buy more of your home through the process of Staircasing.

Similar Properties

Start of slider, skip slider

Showing 1 of 10

End of slider, skip slider